SOZOSYA稲川ビル





「静岡」駅南口より徒歩5分。
石田街道沿いの静岡市中心エリアに、利便性と機能性を兼ね備えた
リノベーションオフィスが登場しました。
JR「静岡」駅南口から徒歩5分という好立地に位置し、視認性の高い石田街道沿いに面したロケーション。
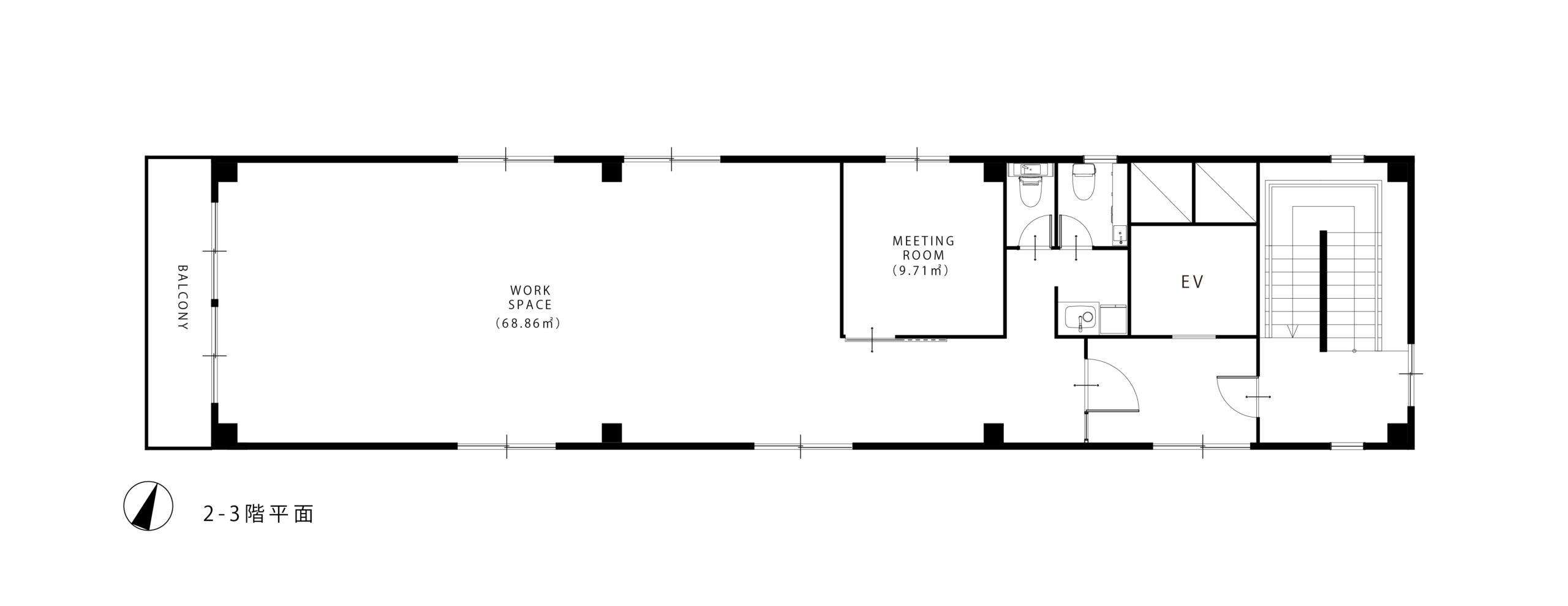
開放感のある室内と、働きやすさを考慮した機能的な空間が整っています。
静岡市企業立地販促助成制度の対象物件となっており、要件を満たす場合、制度を利用できる可能性があります。
※現在、ご紹介可能な区画は残りわずか。
⸻
• 静岡市企業立地販促助成制度 対象(要件あり)
• OAフロア
• 無料Wi-Fi完備
• セキュリティ設備あり
• インターホン付き
• エレベーターあり
• キッチン・浴室付き区画あり
• ご紹介可能区画 残りわずか
⸻
【LOCATION】
物件名 SOZOSYA稲川ビル
所在地 静岡市駿河区稲川2丁目1-35-2
立地 「静岡」駅南口 徒歩5分・石田街道沿い鉄骨造5階建
【BUILDING DETAILS】
構造規模 鉄骨造5階建
総戸数 4戸
区画番号 2階~5階
【FACILITIES】
竣工年 2026.1フルリノベーション済
設備 EVあり/1階店舗誘致予定
駐車場 なし
駐輪場 あり(台数制限あり)
バイク なし
【RENTAL TERMS】
賃料 240,000円
敷金 3ヶ月
礼金 1ヶ月
更新料 なし
契約形態 普通賃貸借
契約期間 2年
賃貸保証会社 加入要
入居可能日 要相談
※家具等の内装画像はイメージとなっておりますのでご了承ください
DATA
- 物件名 SOZOSYA稲川ビル
- 住所 静岡市駿河区稲川2丁目1-35-2
- 面積 87.51m²
- 賃料 240,000円